Dual-Space Concept for a Vibrant Family
Location
Southwest London
Type
Victorian House
Area
30 sqm
Budget
£18k
Our clients, a family of four with both parents working full-time, required two complete and comfortable workstations — one in the study and one in the guest bedroom. With a clear modern mid-century aesthetic guiding the design, the key challenge was creating neat, highly functional, built-in joinery in both rooms to use every bit of available space.
Our Approach: Precision Planning & Solutions
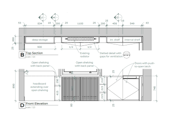
The Study had to serve as a productive office, an exercise room and a retreat for their dog. We started by carefully planning the layout to accommodate the desk (positioned by the window but avoiding glare), the Peloton (near a socket) and the dog bed, while ensuring ample floor space remained for yoga practice. The workspace features a veneered desk with ribbed details and varied drawer sizes. A secret panel conceals sockets and cable mess, complemented by simple ribbed wall shelving above. A sideboard stores paperwork and workout gear, while a mural wallpaper and a terracotta-trimmed roman blind bring in natural elements.
The design for the Guest Bedroom was centred around fitting a desk, a large wardrobe and a guest bed with a trundle. Given the success of the existing layout, we focused our efforts on built-in solutions. The large wardrobe was designed for the husband’s clothes and general storage. The work station was given a dedicated nook feature, and shallow feature storage runs under the window, concealing the radiator and acting as a headboard for the divan bed.
The Result: Bespoke Dual-Function Rooms
Both rooms achieved a perfect blend of style and utility. The Study is a serene, multi-functional hub where natural colours from the mural wallpaper encourage focus. The Guest Bedroom’s colour scheme — muted blue joinery, off-white walls, and veneered wood — was based on the clients’ style and existing artwork. The introduction of gold hardware details breaks the masculine feel and organic-lined textiles finish the room perfectly. By prioritizing custom joinery and functional planning, we delivered two highly personal spaces tailored to the family’s busy lives, proving that even small spaces can accommodate complex needs.


